Studienauftrag Pestalozzistrasse, Thun

Mit dem Bau der Genossenschaftssiedlungen Nünenen und Schönau wird Ende der 1960er Jahre der westliche Stadtrand von Thun räumlich klar definiert. Neue Bebauungsmuster und grossmassstäbliche Gebäude verändern damit das bisher eher durch kleinteilige Bauten entlang der Ausfallstrassen (Länggasse, Pestalozzistrasse) geprägte Quartierbild. Die zeittypische städtebauliche Setzung thematisiert mit den unterschiedlich hohen, rechtwinklig, leicht versetzt zueinander stehenden Zeilenbauten und durchfliessenden Aussenräumen auf eine selbstverständliche Art charakteristische Elemente der Moderne: Licht, Luft, Sonne.

Beim Weiterbauen sind diese Qualitäten kritisch zu würdigen sowie Schwachstellen, z.T. hervorgerufen durch spätere Veränderungen oder unklare Raumzuordnungen, nachhaltig zu verbessern. Dies betrifft insbesondere die Aussenräume und die Bezüge zum Quartier, die ergänzenden Wohnungstypologien und den architektonischen Ausdruck. Dabei geht es darum die Identität im Quartier, in der Siedlung, im Haus zu stärken. Und: In einer Vision auch aufzuzeigen, wie sich die städtebauliche Idee über die Parzellengrenze hinweg als Mehrwert erweisen kann.

Die städtebauliche Setzung nimmt das Muster und die Körnung des Bestandes mit einer horizontalen und vertikalen volumetrischen Staffelung auf und verwebt diese im Sinne einer Vision über die eigentliche Siedlungsgrenze hinaus. Den östlichen Abschluss bildet ein viergeschossiger Zeilenbau, der sich als Kontinuum gegen die Pestalozzistrasse zu einem achtgeschossigen Punktbau erhebt. Mit diesem feinen Akzent – und dem wünschbaren Gegenüber auf der anderen Strassenseite – erhält das Quartier einen baulichen und sozialen Fokuspunkt. Räumlich wird auf der Pestalozzistrasse zukünftig neben dem baumbestandenen offenen Parking ein durch die neuen Bauten definierter, verbindender Begegnungsbereich als Quartierplatz ausgezeichnet. 

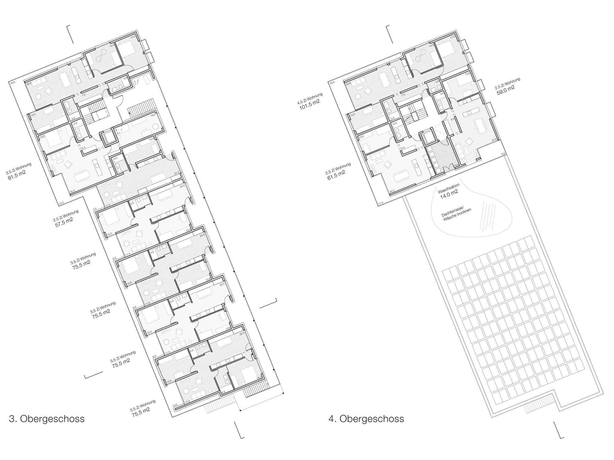
Die Erschliessung des Neubaus erfolgt über ein zentrales Treppenhaus mit einem Lift im nördlichen Bereich und schliesst logisch an das Weg-Platzsystem des Quartiers resp. der Siedlung an. Die öffentlichen resp. halb öffentlichen Räume des Erdgeschosses werden direkt vom Platz erschlossen; die Maisonette-Wohnungen vom Hof über einen Vorbereich. Der achtgeschossige Gebäudeteil ist als effizienter Dreispänner organisiert, der viergeschossige Teil wird über einen Laubengang erschlossen. Eine klare Zonierung schafft differenzierte Öffentlichkeitsgrade. Die gemeinschaftlichen Bereiche wirken durch die ebenerdige Lage und die Überhöhe öffentlich, oder durch die Lage entlang der vertikalen Erschliessung. Privatheit wird über die Hochparterresituation und den Vorbereich bei den Erdgeschosswohnungen sowie die Vorbereiche im Laubengang und die Anordnung der Öffnungen bei diesen spezifischen Wohnungen artikuliert.

Das städtebauliche Konzept, die Typologie und die Struktur erlauben eine hohe Planungs- und später auch Nutzungsflexibilität. Die Räume sind durch ihre Erschliessung, ihre Proportionen, Flächen und Bezüge äusserst anpassbar. So können z.B. die öffentlichen und gemeinschaftlichen Nutzungen im Erdgeschoss der Punktstruktur als Bistro und Gemeinschaftsraum unterteilt oder als ganze Flächen genutzt und so verschiedene Aktivitäten ideal kombinieren werden. Im 1. Obergeschoss lässt die Struktur sowohl Wohnen als auch gewerbliche und Freizeitnutzungen zu. Der definitive Wohnungsmix kann weitgehend in der Planungsphase festgelegt und wenn nötig innerhalb des Raumkonzeptes später auch angepasst werden. Die städtebauliche Vision mit einem zweiten platzbildenden Gebäude auf der Nordseite bleibt Teil der Planungsflexibilität.



 


Adresse

Pestalozzistrasse 95, Thun


Bauherrschaft

Bau- und Wohngenossenschaft BWG Nünenen, Thun


Auftragsart

Selektiver Studienauftrag


Planung

2018


Planerteam

Bürgi Schärer Architekten, Bern
Weber Brönimann Landschaftsarchitekten, Bern