Neubau Abdankungshalle Bümpliz, Bern

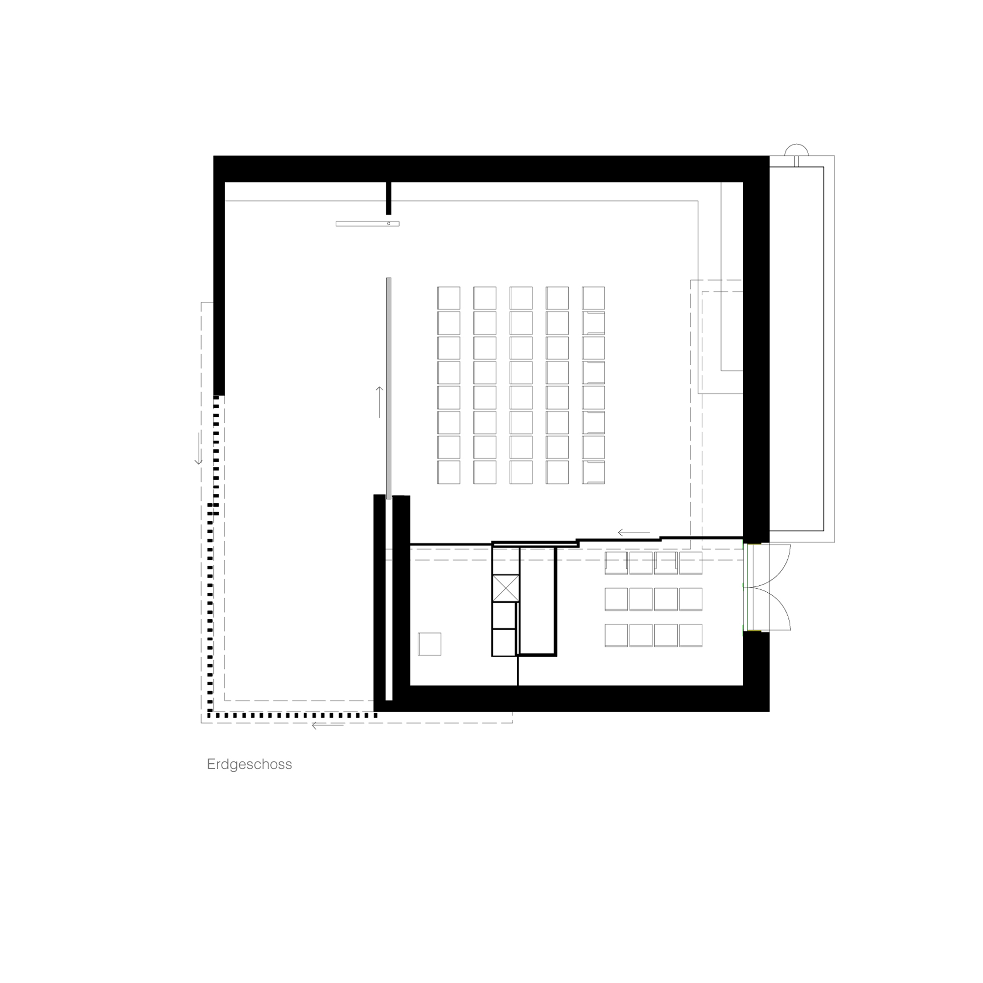
Der Raum mit 50 Sitzplätzen und einer schützenden Vorhalle steht Angehörigen aller Kulturen und Religionen offen. Im Friedhof mit seinen äusseren, recht offenen Rändern entwickelt sich an zentraler Lage ein kraftvoller Ort, der Ruhe und Weite ausstrahlen soll. Hinter dem quadratischen Grundriss kann die universelle Form des Mandala gelesen werden – Symbol für den Übergang vom Materiellen zum Spirituellen.

Übergänge prägen den Baukörper. Die Vorhalle als Zugang von Westen wird als Aussenraum des Innenraums zum Innenraum des Aussenraums. In der zentralen Halle wird die Ostwand durch ein Oberlicht beleuchtet. Der Bezug nach oben erhält mit einem Bodenlicht ein Gegenüber und spannt so den Bogen zwischen Himmel, Erde und Wasser. Mit wenigen Öffnungen werden räumliche und symbolische Beziehungen geschaffen. Der skulpturale Massivbau in Sichtbeton bezieht sich auf den ganzen Friedhof. Durch helle Holzverkleidungen erhält der Innenraum eine meditative Stimmung.



Adresse

Bottigenstrasse 40, 3018 Bern


Bauherrschaft

Stadtbauten Bern


Auftragsart

Wettbewerb


Planung

2002–2003


Ausführung

2004


Planerteam

Bürgi Schärer Architekten, Bern
Büchi Bauunternehmung, Bern
Mosimann Holzbau, Oberwangen
Otto Zenger, Bern
Gfeller, Bern
Ulrich Pulver, Köniz
Badertscher+Co, Bern


Label

Minergie


Fotos

Dominique Plüss, Bern